COFAN
Proyecto COFAM: Remodelación Sostenible de Oficina
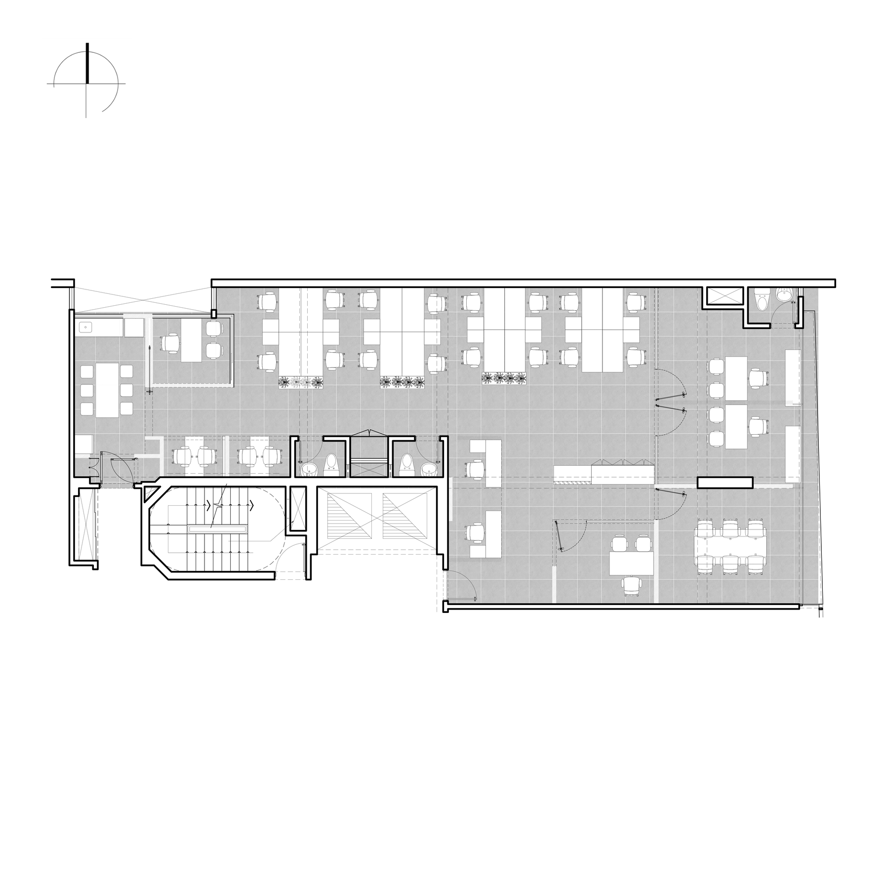
La oficina de COFAM fue objeto de una remodelación integral con enfoque sostenible, aprovechando recursos existentes para reducir costos y impacto ambiental. El proyecto incluyó la reutilización de mobiliario, vidrios y alfombras, junto con la implementación de sistemas de iluminación LED y ventanas de alta eficiencia térmica. El resultado es un espacio moderno, funcional y eco-friendly que promueve el bienestar de los empleados y la eficiencia energética.
Highlights del Proyecto:
- Optimización de Recursos: Reutilización de mobiliario y alfombras existentes.
- Eficiencia Energética: Instalación de sistemas de iluminación LED.
- Diseño Sostenible: Uso de materiales reciclados y prácticas de construcción eco-friendly.
- Mejora del Ambiente de Trabajo: Diseño de espacios que promueven la productividad y el bienestar de los empleados.
Reducción de Costos: Aprovechamiento de recursos existentes para minimizar gastos.
Conclusión:
El proyecto COFAM es un ejemplo destacado de cómo la sostenibilidad y la eficiencia pueden integrarse en la remodelación de oficinas, sin comprometer la funcionalidad y el diseño. Este proyecto demuestra nuestro compromiso con la innovación y la sostenibilidad, y cómo estos principios pueden aplicarse de manera efectiva en el diseño de espacios comerciales. El resultado es un espacio moderno y eco-friendly que no solo mejora el entorno de trabajo, sino que también contribuye positivamente al impacto ambiental.
- Cliente : COFAM
- Fecha : Junio de 2024
- Tipo de Arquitectura : Comercial.
- Alcance : Remodelación sostenible y eficiente de oficina.
- Dimensiones : 180m²


